Agenzia Immobiliare a Chioggia e Sottomarina (VE) - Spazio Casa

Vendita casa singola ristrutturata a Chioggia

€ 395000

Casa singola

130 mq

2

2

Descrizione dell'immobile

Cerchi una casa singola ristrutturata a Chioggia? Abbiamo la soluzione che fa per te!

Nel cuore del centro città a due passi da Riva Vena, Spazio Casa propone in vendita casa singola ristrutturata a Chioggia. L’immobile di mq 130 è disposto su quattro livelli ed è composto da:

piano terra: ingresso con cantina/ripostiglio e stanza multiuso.

Piano primo: salendo le scale troviamo la zona living open space con angolo cottura e comodo terrazzino, bagno di servizio finestrato e completo di tutti i sanitari e ripostiglio/stireria.

Piano secondo: nella zona notte troviamo la camera padronale, una camera media ed il secondo bagno. L’appartamento si trova all’interno di una palazzina storica ristrutturata recentemente, con tutte le caratteristiche e finiture delle nuove costruzioni.

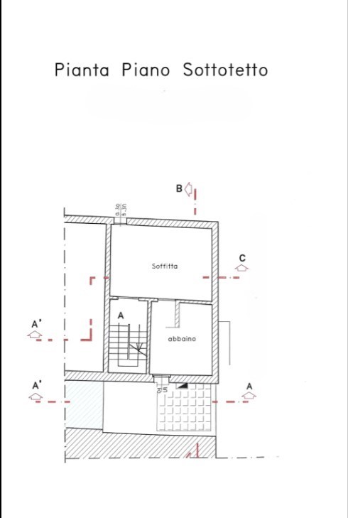
Piano terzo: troviamo un’altra stanza da adibire a piacimento.

La casa è stata recentemente ristrutturata con isolamenti termici ed acustici ed impianti elettrico ed idraulico a norma. La caldaia a condensazione è stata installata nel 2019.

Desideri avere maggiori informazioni riguardanti questo immobile? Contattaci e riceverai in maniera veloce e completamente gratuita tutte le informazioni che più desideri!

Scopri i dettagli

Caratteristiche dell'immobile

Planimetrie

Virtual tour

Non disponibile

Posizione

Sei interessato? Contattaci

Inserisci i tuoi dati per la richiesta