Agenzia Immobiliare a Chioggia e Sottomarina (VE) - Spazio Casa

Vendita casa singola ristrutturata a Sottomarina

€ 238000

Casa singola

80 mq

3

2

Descrizione dell'immobile

Cerchi una casa singola ristrutturata a Sottomarina? Abbiamo la soluzione che fa per te!

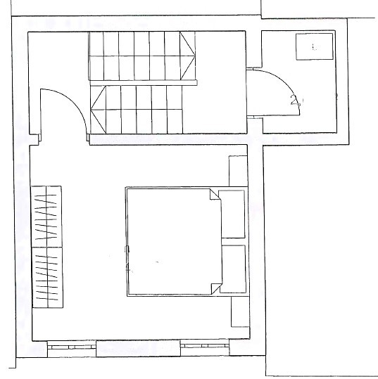
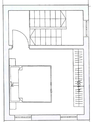
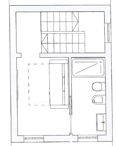
In zona residenziale centrale, Spazio Casa propone in vendita casa singola ristrutturata a Sottomarina. La casa attualmente da ristrutturare, verrà venduta finita e ristrutturata a nuovo nella sua interezza, con possibilità di scegliere le finiture interne come da capitolato. L’immobile di mq 80 è così composto:

piano terra: accesso alla zona living con angolo cottura a vista, con la possibilità di ricavare una cantina per le bici, o una comoda lavanderia.

Piano primo: troviamo un’ulteriore salotto, oppure una comoda cameretta con bagno padronale finestrato, che verrà completato con tutti i sanitari incluso il box doccia.

Piano secondo: comoda camera matrimoniale e bagno di servizio a discrezione della zona notte.

Piano terzo: ultimo piano mansardato nel quale è possibile ricavare una seconda camera matrimoniale di ampie dimensioni con cabina armadio.

La casa dispone inoltre di una corte nelle vicinanze nella quale sarà possibile ricavare un posto bici scoperto.

Desideri avere maggiori informazioni riguardanti questo immobile? Contattaci e riceverai in maniera veloce e completamente gratuita tutte le informazioni che più desideri!

Scopri i dettagli

Caratteristiche dell'immobile

Planimetrie

Virtual tour

Non disponibile

Posizione

Sei interessato? Contattaci

Inserisci i tuoi dati per la richiesta